

About This Property
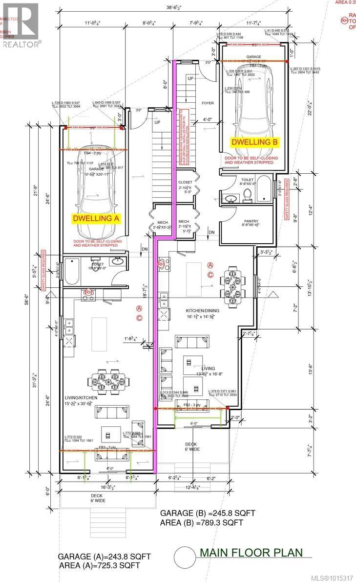
Brand new half duplex in a desirable central Diver Lake location on a quiet cul-de-sac in a family-oriented neighborhood. Steps from shopping, coffee shops, restaurants, schools, bus routes, Beban Park, Beban pool, skating arena, & the lake. This quality-built home offers 3 bedrooms & 3 full bathrooms with a main-level entry. The open-concept main floor features a bright kitchen with a large island, spacious living room with electric fireplace, full bath, & single garage. Upstairs, the primary bedroom offers two large closets and a 4-piece ensuite, plus two more bedrooms, a full bath, a den/office & laundry. Enjoy natural gas heating, electric hot water tank, EV charger rough-in, blinds, quartz countertops throughout the whole house. Pre-book and enjoy the opportunity to customize interior and exterior colors, cabinetry, and more while construction is underway. All measurements approximate; buyer to verify. GST applicable. Price is plus GST. (id:64973)
At $413 per square foot, this new half-duplex in central Nanaimo is priced above the city's median of $365 per square foot, but the desirable location and quality construction make it a competitive offering. Families with young children will appreciate the three-bedroom layout and proximity to schools, parks, and amenities, positioning this property as a strong option for those seeking a turnkey home in a thriving community.
Property Details
Location
Interested in buying in Nanaimo?
Rose Marie Manno is a 5-star rated REALTOR® serving Metro Vancouver & the Fraser Valley.
The data relating to real estate on this website comes in part from the MLS® Reciprocity program of the Canadian Real Estate Association. Real estate listings held by participating real estate firms are marked with the MLS® logo and detailed information about the listing includes the name of the listing agent. This representation is based in whole or part on data generated by the FVREB, REBGV or CADREB, which assumes no responsibility for its accuracy. The materials contained on this page may not be reproduced without the express written consent of the Real Estate Board of Greater Vancouver, the Fraser Valley Real Estate Board, or the Chilliwack and District Real Estate Board.