

About This Property
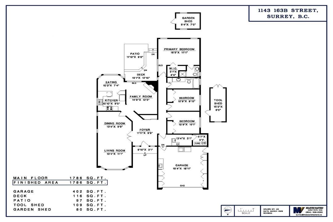
Three bed/2 bath rancher home, all level at 1,786 SF. Floor plan available. Family room-eating area-formal living and dining Room. Spacious primary bedroom faces the back gardens, walk-in closet and ensuited. South west exposure in the fenced backyard. Lot size: 7,112 SF - no traffic. Safe cul-de-sac location. Home has full crawl - excellent for renovations *One block to transit. Lots of parking on site-driveway accommodates four cars and double garage attached. Easy day to get the kids to school-cut through in cul-de-sac to South Meridian Park & South Meridian Elementary School. Open House April 4 th 2-4 PM (id:64973)
At $727 per square foot, this Surrey home is priced slightly above the city's average of $685 per square foot, suggesting strong value for a three-bedroom, two-bathroom rancher with a spacious lot and crawl space. The property's proximity to transit and schools makes it an ideal fit for young families seeking a comfortable, low-maintenance living space in a family-friendly cul-de-sac community.
Video Tour
Property Details
Location
Interested in buying in Surrey?
Rose Marie Manno is a 5-star rated REALTOR® serving Metro Vancouver & the Fraser Valley.
Surrey Realtor · Best Realtor in White Rock · Top South Surrey Agent
The data relating to real estate on this website comes in part from the MLS® Reciprocity program of the Canadian Real Estate Association. Real estate listings held by participating real estate firms are marked with the MLS® logo and detailed information about the listing includes the name of the listing agent. This representation is based in whole or part on data generated by the FVREB, REBGV or CADREB, which assumes no responsibility for its accuracy. The materials contained on this page may not be reproduced without the express written consent of the Real Estate Board of Greater Vancouver, the Fraser Valley Real Estate Board, or the Chilliwack and District Real Estate Board.